A smart master bedroom layout can completely change how you sleep, relax, and recharge. When furniture placement, lighting, and flow all work together, even an average room suddenly feels luxurious and pulled together. If you’re ready to rethink your space, keep reading to discover fresh, stylish layout ideas you can copy right away for any size, shape, or design style.
Calm, Connected Master Bedroom Layout

This master bedroom layout shows how a simple rectangle can work hard. The bed sits against the left wall, facing open floor space for easy movement, with subtle planting hinting at a balcony or window zone. A sliding door leads to a generous ensuite with double vanity, separate toilet niche, and a long soaking tub. Built-in storage along the bottom and right keeps everything tucked away, shaping a truly clutter-free sleep space.
Smart Master Bedroom Layout With Ensuite and Balcony

A hand-drawn master bedroom layout highlights how smart zoning instantly makes a space feel luxurious. The king bed sits centered on a large rug, flanked by nightstands and a sleek console at the foot, creating a cozy sleep zone with clear circulation all around. To one side, built-in wardrobes and a compact work desk stay neatly aligned, while the opposite side opens to an ensuite bath and a small balcony garden, balancing privacy, storage, and relaxation.
Open-Flow Luxury Master Bedroom Layout

Expansive, light-filled design ties this master bedroom layout together, flowing effortlessly from sleeping zone to ensuite. A plush bed faces broad windows that frame relaxing countryside views, while a chunky timber bedside table and soft throws keep things cosy and grounded.
Just behind, a discreet walk-through robe leads into a generous ensuite with walk-in shower, floating double vanity, and full-height mirrors. The clever zoning keeps storage and daily routines tucked away, so the main bedroom always feels calm, luxurious, and clutter-free.
Comparing Two Master Bedroom Layout Styles

Side by side, these floor plans highlight how a smart master bedroom layout can completely change how the suite feels. The first plan keeps things efficient: a square bedroom with a direct connection to a dual-sink bath, glass shower, and whirlpool tub. The second layout goes all in on luxury, adding a coffered-ceiling bedroom, cozy sitting room, two walk‑in closets, an expansive spa-style bath, and even balcony access for a private retreat vibe.
Smart Master Bedroom Layout for Compact Spaces

A clever sketch of a compact master bedroom layout shows how every inch of an 11′ x 9’6″ room can work hard. The bed with under-storage sits opposite a full-length wardrobe and mirror, while clear circulation paths guide you from the entry to the balcony and attached toilet. Thoughtful zoning keeps storage, shower, basin, and WC neatly tucked away, creating a space-efficient room that still feels airy, practical, and vastu-conscious.
Smart Master Bedroom Layout for Compact Living

Compact can still feel luxurious, and this master bedroom layout proves it. A central bed anchors the room, while a slim work desk runs along one wall, keeping the home office zone practical but unobtrusive. Opposite, a cozy sofa and accent chair carve out a relaxed reading nook. Built-in wardrobes frame the passage to the ensuite, and sliding doors open to a narrow balcony, giving this small master bedroom a surprising sense of light, flow, and privacy.
Airy Master Bedroom Layout with Barn Door Ensuite

Natural light floods this master bedroom layout, where full-height patio doors frame a lush outdoor view and instantly expand the sense of space. The bed faces the doors, making the landscape a daily backdrop, while soft neutral bedding keeps the room feeling calm and effortlessly pulled together.
A sliding barn door leads directly into the master bath, creating a smooth flow between sleeping and getting-ready zones. This smart layout tucks the ensuite to the side, preserves wall space, and lets the bold geometric ceiling light become a standout focal point in the room.
Smart Master Bedroom Layout in a Compact Floor Plan

Here, the master bedroom layout sits neatly at the back corner of the 28′ × 39′ single-story home, buffered from noise by the living room and a short hallway. The 11′ × 12′ master gains privacy while still staying close to a common bathroom and the main circulation path.
Positioned opposite Bedroom 2 and near the dining and kitchen zone, this master bedroom layout makes daily routines feel effortless. You get separation from social spaces without feeling cut off, which is ideal if you want a calm retreat in a modest footprint.
Cozy Dark Master Bedroom Layout Inspiration

A deep charcoal panelled wall instantly anchors this master bedroom layout, creating a dramatic backdrop for the soft upholstered headboard and layered bedding. Warm oak bedside drawers, a low-hanging glass pendant, and rust velvet cushions break up the dark tones, so the space feels cocooning rather than gloomy. The patterned rug zones the sleep area, while simple botanical artwork keeps the look calm, stylish, and easy to recreate in your own BedroomInspo moodboard.
Master Bedroom Layout Ideas for a 3‑Room BTO

A clean, minimal graphic highlights how one master bedroom layout can shift in three clever ways for a compact 3‑room BTO. The bold headline sits against a white torn-paper backdrop, with a bright lightbulb icon hinting at smart space-saving ideas. It instantly signals that you’re about to see practical, real-life configurations that make a small master bedroom layout feel intentional, flexible, and stylish instead of cramped.
Smart Master Bedroom Layout With Ensuite Comfort

This master bedroom layout shows how a simple rectangle can feel like a mini suite. The bed sits opposite a compact seating zone, keeping a clear path from the entrance through the room. An L-shaped walk-in closet and tucked-away toilet form a private core, while the freestanding tub lines up dramatically along the wall. Everything feels deliberate, giving you storage, relaxation, and spa vibes without wasting a single square foot.
Smart Master Bedroom Layout With Ensuite and Walk‑In Robe

A clever master bedroom layout here places Bed 1 at the heart of a private suite, flowing directly into a generous walk‑in robe and a spa‑like ensuite. The freestanding bath becomes the hero of the tiled wet zone, while the separate WC keeps the space practical for everyday use. Clear circulation paths, a cavity slider, and direct access toward an outdoor area make this layout feel luxurious, functional, and retreat‑worthy.
Comparing Two Smart Master Bedroom Layout Ideas

Side by side, these two floor plans highlight how a thoughtful master bedroom layout can upgrade daily comfort. The first plan uses a long hallway to create a quiet retreat, with dual walk-in closets flanking a spacious primary bath and easy access to a covered porch. The second leans cozier, pairing a barn-door bath entry with a generous master closet that builds in dresser space and a custom shower zone.
Smart Master Bedroom Layout With Integrated Office and Dressing Area

The floor plan showcases a clever master bedroom layout that links the sleeping zone, a compact home office, and a dedicated dressing area in one flowing L-shaped space. The bed sits centered on a large rug, with nightstands and warm-white halogen lighting creating a cozy focal point. Built-in wardrobes form a spine between the bedroom and office, while a separate dressing nook and balcony access keep circulation smooth and clutter out of sight.
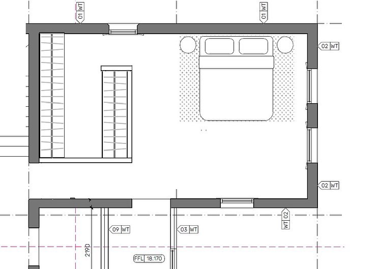
Light-Filled Master Bedroom Layout With Smart WIR Zoning

This floor plan nails a practical yet dreamy master bedroom layout. The bed sits centrally against the top wall, flanked by bedside tables and wrapped in dotted shading that subtly marks the main sleep zone. Three generous windows flood the room with natural light, while the walk-in robe is neatly tucked to the left, creating a separate dressing corridor. That shift from enclosing brick to an open, aligned wall gives the bedroom prime light, better flow to the en-suite, and a more luxurious, spacious feel overall.
Desert-Inspired Master Bedroom Layout With Seamless Ensuite

Soft lines and a clean, zoned plan make this master bedroom layout feel calm yet incredibly functional. The bed sits center stage with a streamlined headboard wall, while a full run of wardrobes anchors the back, keeping clutter out of sight. Sliding doors open the room toward the exterior, hinting at those sun-drenched Joshua Tree views, and an integrated ensuite tucks neatly to the side so the whole suite flows like one relaxed desert retreat.
Effortless Master Bedroom Layout With Walk‑Through Wardrobe

A thoughtfully planned master bedroom layout shines here, using a streamlined walk‑through wardrobe to link the sleeping zone to the ensuite. Twin timber cabinets create subtle his‑and‑her storage, with hanging space and deep drawers keeping everything in sight yet neatly contained. The central passage frames a clean, stone‑topped vanity and skylight, drawing natural light back into the dressing area and turning the daily routine into a calm, boutique‑hotel moment.
Cozy Master Bedroom Layout with Subtle Festive Touches

A calm greige panelled wall anchors this master bedroom layout, with the upholstered bed centered beneath a simple evergreen wreath. Layered cushions and a textured throw create depth, proving you can keep the color palette neutral while still adding rich visual interest.
On one side, a warm wood bedside table balances the bed and frames the layout, styled with a petite faux tree, candle, and design book. The wall light frees up surface space, a smart layout trick for smaller master bedrooms.